Mieszkanie, 88 m2, Poznań
Mieszkanie na sprzedaż, Poznań, Grunwald



















| Grzegorz Gardyjas 14458 |
| Telefon: 606 239 052 |
| gardyjas@everest-realty.pl |
CHCESZ DOWIEDZIEĆ SIĘ WIĘCEJ?
Oferta wyświetlona 5 razy
Opis
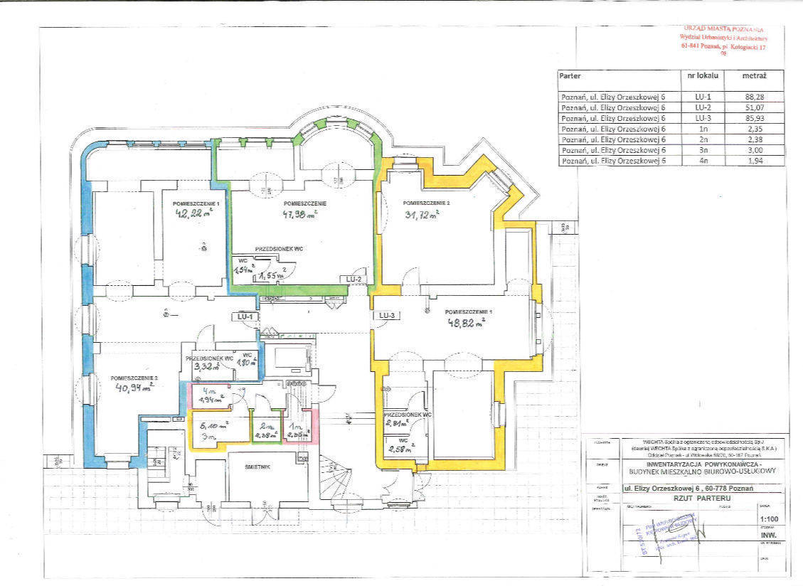
Na sprzedaż ostatni lokal użytkowy o powierzchni 88,28 mkw w pięknie zrewitalizowanej willi miejskiej w Poznaniu, pod jednym z najlepszych adresów w mieście- ul. Elizy Orzeszkowej 6.Doskonała propozycja na inwestycję (najem krótko/długoterminowy), na własne cele mieszkalne lub na cele działalności gospodarczej- swojej lub lokal biurowy/usługowy pod wynajem. .
Lokal został podzielony na 3 apartamenty, każdy ze swoją łazienką.
Księga wieczysta bez obciążeń.
LU1 kolor niebieski na rzucie - pow. 88,28m2 (1. 17,89m2; 2. 29,19m2; 3. 21,49m2)
Cena sprzedaży w obecnym stanie, łącznie z wyposażeniem i umeblowaniem.
ZAPYTAJ O LINK DO WIRTUALNEGO SPACERU
W galerii aktualne zdjęcia, rzut stanu obecnego (mieszkania przygotowane pod najem krótkoterminowy) oraz rzut przed podziałem (możliwość przywrócenia do stanu pierwotnego, albo zrobienia aneksów kuchennych i podziału na 2 lub 3 mieszkania także pod wynajem długoterminowy).
Bardzo atrakcyjna oferta, serdecznie zapraszam na prezentację i do zakupu!
Oferta z klauzulą wyłączności.
Więcej informacji na życzenie.
Prezentacja i kontakt:
Grzegorz Gardyjas
pośrednik w obrocie nieruchomościami licencja zawodowa nr 14458,
zarządca nieruchomości licencja zawodowa nr 26146,
Zapraszamy na naszą stronę internetową www everest-realty pl na której znajdziecie Państwo najnowsze i aktualne oferty naszego Biura Nieruchomości.
Jesteśmy biurem licencjonowanym, ubezpieczonym, stosujemy Kartę Praw Klienta.
Jesteśmy członkiem PFRN oraz WSPON.
Celem zapewnienia kompleksowej pomocy przy obsłudze transakcji współpracujemy z doradcami kredytowymi oraz firmami specjalizującymi się w organizowaniu przeprowadzek.
*Zamieszczona oferta nie stanowi oferty w rozumieniu przepisów Kodeksu Cywilnego
Oferta nr 166960012 wysłana z systemu LocumNet Online
Szczegóły
| Numer oferty | 166960012 |
| Typ oferty | Mieszkanie |
| Rodzaj transakcji | Sprzedaż |
| Cena | 948 000 PLN |
| Cena za m2 | 10 739 PLN |
| Licza pokoi | 3 |
| Liczba pięter | 3 |
| Powierzchnia | 88 m2 |
| Miejscowość | Poznań |
| Dzielnica | Grunwald |
| Województwo | WIELKOPOLSKIE |
| Powiat | Poznań m. |
| Gmina | Poznań M. |
Everest Select Properties
Odwiedź nasze biuro i opowiedz nam o Twoich oczekiwaniach!Adres naszego biura
ul. Spychalskiego 7/1, 61-543 PoznańZadzwoń do nas
Znajdziemy dla Ciebie interesującą ofertę, która będzie dostosowana do Twoich wymagań.Zadzwoń dziś!
Dzwoń 606239052 Dziś!CHCESZ DOWIEDZIEĆ SIĘ WIĘCEJ?
4.75
4.76
5.41
4.38